COPERTURE IN PVC
CAPANNONI MOBILI

Le coperture in PVC, altrimenti dette tunnel per la loro forma caratteristica, sono la soluzione ideale per creare in modo pratico e veloce nuovi spazi di lavoro

Oltre a proteggere dalle intemperie aree esterne dedicate al carico e allo scarico delle merci, sono ideali per creare una superficie coperta aggiuntiva temporanea da destinare allo stoccaggio dei materiali.
Le nostre coperture sono strutture robuste e durevoli realizzate in acciaio zincato con giunzioni imbullonate, copertura e pareti laterali con un manto in PVC bianco e due aperture nelle pareti frontali con apertura scorrevole manuale. Disponibili esclusivamente in tessuto bianco, una scelta che garantisce durabilità nel tempo, un ambiente interno luminoso grazie alla permeabilità alla luce, e un migliore comfort termico attraverso la capacità di riflettere le radiazioni luminose. Realizzati su misura in base agli spazi disponibili e alle caratteristiche ambientali in cui vengono inserite, i capannoni mobili possono essere indipendenti o affiancate ad altri edifici e comunicare con essi.

Addio opere di fondazione

Il sistema di zavorre mobili, parte integrante della struttura, distribuendo uniformemente il carico eliminano completamente la necessità di opere di fondazione, rendendo l’allestimento rapido e flessibile su qualsiasi tipo di suolo: ghiaia, terra battuta, asfalto o cemento. Questa soluzione oltre a garantire stabilità, protegge la struttura metallica dagli urti, permette un facile smontaggio e riallocazione senza alterare il terreno, elimina i costi delle opere di fondazione.

In pronta consegna

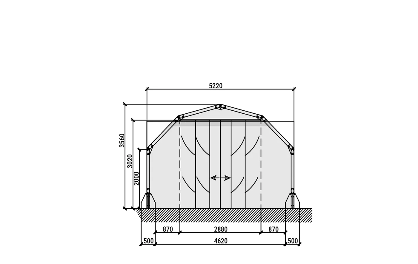
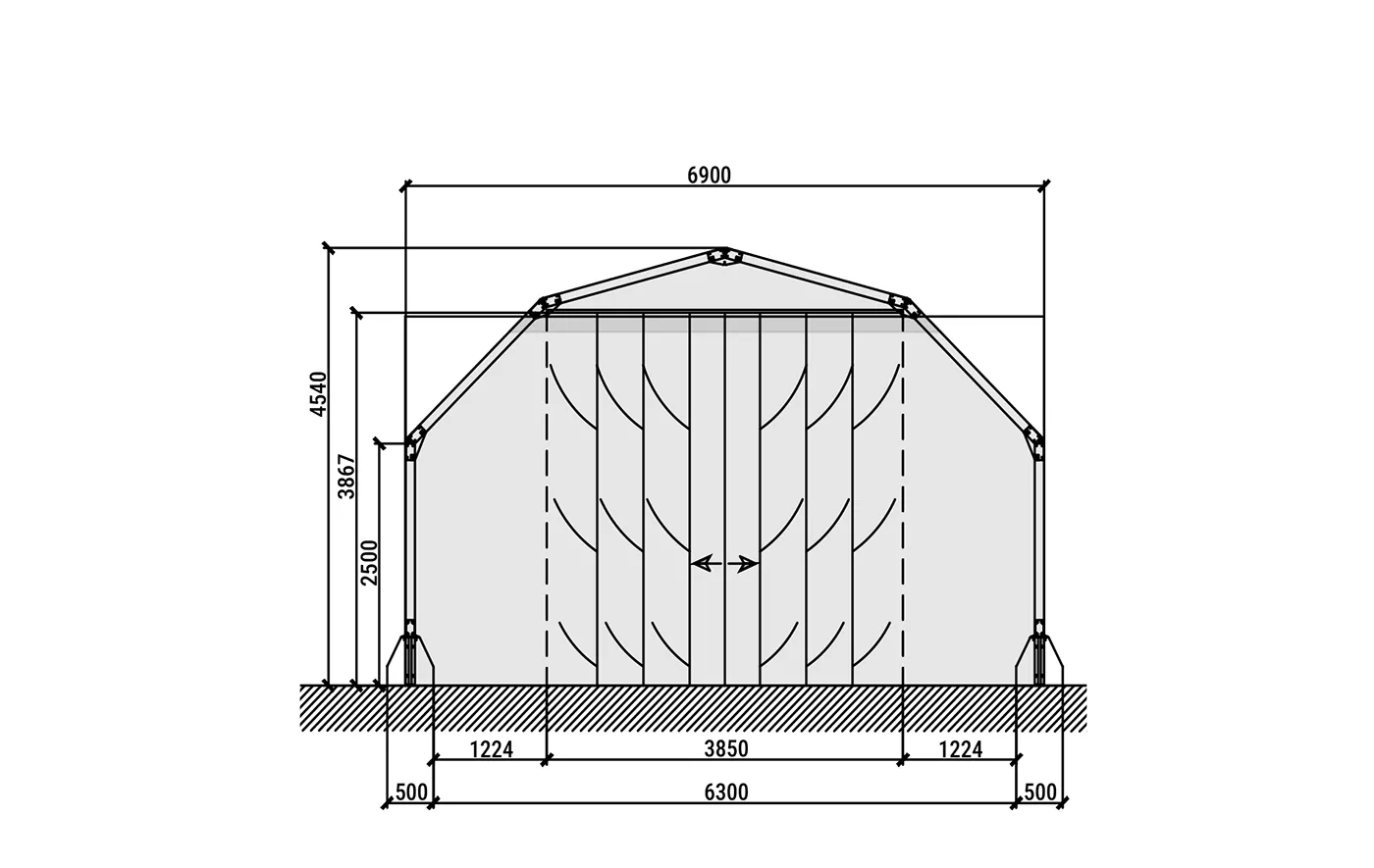
Disponibile in pronta consegna, il sistema modulare è progettato per adattarsi rapidamente a diverse esigenze grazie a otto varianti dimensionali in larghezza e altezza, con profondità modulari da 3 metri. La struttura garantisce massima resistenza, supportando un carico neve di 100 kg/mq e sopportando raffiche di vento fino a 100 km/h. La particolare architettura aerodinamica consente un volume di stoccaggio maggiorato del 18%.
 
AMOVIBILI E RIPOSIZIONABILE, NON OCCORRONO OPERE MURARIE
 
CREA UNO SPAZIO COPERTO PER IL CARICO E LO SCARICO DELLE MERCI
 
ALLESTIMENTO RAPIDO SU OGNI TIPOLOGIA DI SUOLO IN PIANO
 
IN PRONTA CONSEGNA, INSTALLABILI SUBITO
Capannoni mobili industriali completamente personalizzabili

CAPANNONI MOBILI

SETTORI DI MERCATO
ALIMENTARE | AMBIENTE E AGRICOLTURA | CHIMICA E FARMACEUTICA | EDILIZIA E IMPIANTI | LOGISTICA E TRASPORTI | MECCANICA E AUTOMAZIONE | TESSILE E MODA | OFFICINA E AUTOMOTIVE | FALEGNAMERIA | eCOMMERCE E RETAIL
CONFIGURAZIONI

FRONTALI

I capannoni mobili in PVC, con ingressi frontali e lati fissi perpendicolari al capannone, permettono di creare spazi coperti aggiuntivi davanti ai fabbricati, utilizzabili sia in modo temporaneo che permanente per stoccaggio delle merci e operazioni di carico e scarico al riparo dalle intemperie, senza dover occupare gli spazi interni. Realizzati con struttura in acciaio zincato e copertura in PVC, possono essere installati frontalmente al fabbricato, estendendosi verso il piazzale.

AUTOPORTANTI

Le coperture mobili indipendenti rappresentano capannoni telonati autoportanti in PVC che non richiedono alcun collegamento fisico con fabbricati preesistenti. Per la loro struttura versatile e modulare, i tunnel indipendenti offrono soluzioni anche in contesti difficili, rendendo utilizzabili aree altrimenti problematiche da gestire con altri sistemi di protezione. Inoltre, possono essere rimossi e spostati rapidamente per essere riallocati in base alle esigenze del momento.

PRODOTTI CORRELATI

Charge box ricarica per carrelli elevatori
CABINA ESTERNA PER RICARICA CARRELLI ELEVATORI
Capannoni mobili studiati per la prevenzione incendi: il colore giallo rende la struttura ad alta visibilità, garantisce la sicurezza durante la ricarica delle batterie e protegge i muletti dalle intemperie.
Scaffalatura da esterno con tettoia e retro protettivi
PORTAPALLET SU ZAVORRE CON COPERTURE
Brevettato per esterni, ideale per lo stoccaggio all’aperto senza fissaggi tradizionali. Si installa subito su zavorre che ne garantiscono stabilità su qualsiasi superficie piana. Amovibile, espandibile e in pronta consegna.

CAPANNONI MOBILI

Aggiungi superficie coperta. Scopri le realizzazioni
CHIEDI UNA CONSULENZA GRATUITA
Proseguendo acconsenti al trattamento dei dati. Leggi la nostra privacy policy.